Home » KATEPWA PRE-DESIGN

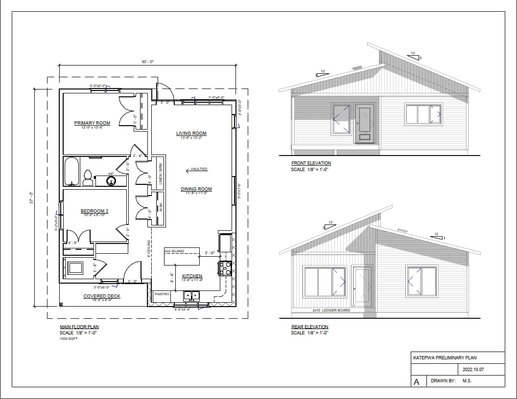
KATEPWA PRE-DESIGN

1020 SF
2 Beds
1 Baths

THE KATEPWA

A humble modern exterior with beachy coastal interiors, the Katepwa is at home on any lake property. Prepping for its debut in 2023, keep your eyes at the ready for this available cottage!

COMING 2023! 

Careers at Zak’s

DESIGN FEATURES & DETAILS

  • Investor Highlights
    • Strong rental demand in a walkable, amenity-rich location
    • Government incentives and tax advantages
    • RTM construction in Hague, SK reduced costs and ensured quality
    • Efficient land use and compact layouts designed for transport
    • Durable materials and energy-efficient systems for low maintenance
  • Tenant Appeal
    • Walking distance to shops, schools, parks, aquatic and event centers, restaurants, and more
    • Modern finishings, symmetrical layout, and open, low-density feel
    • Private entries, close parking, and adaptable design for future accessibility
  • Design Features
    • Shared walls and air-source heat pumps for thermal efficiency
    • Gravel landscaping for drainage and pest control
    • Open layouts with stacking laundry and minimal common areas
    • Space for ramps, designated parking, and flexible unit conversions

FLOOR PLAN

Floor Plan

WARRANTY

Zak’s custom-built home is backed by our industry-leading warranty.

REQUEST QUOTE +