Home » KIMBALL PRE-DESIGN 2022

KIMBALL PRE-DESIGN 2022

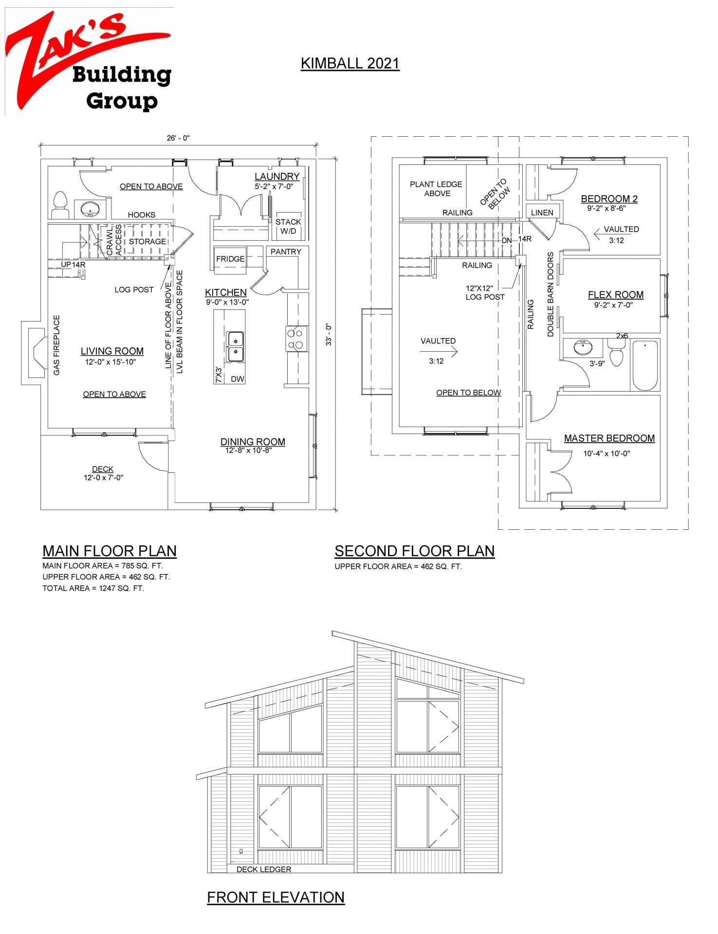
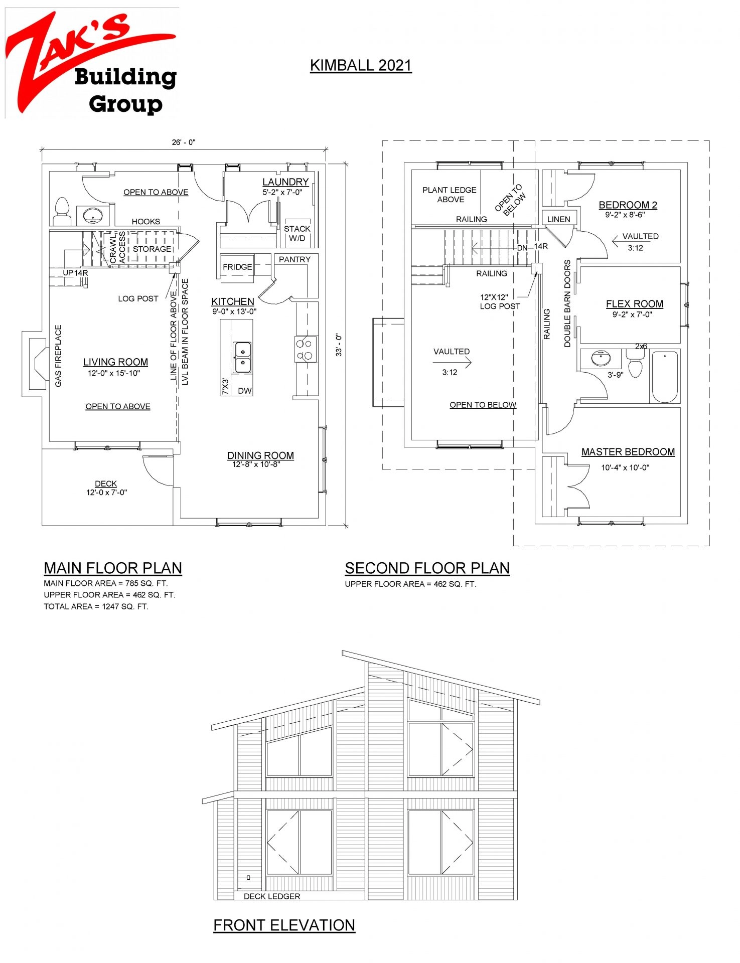
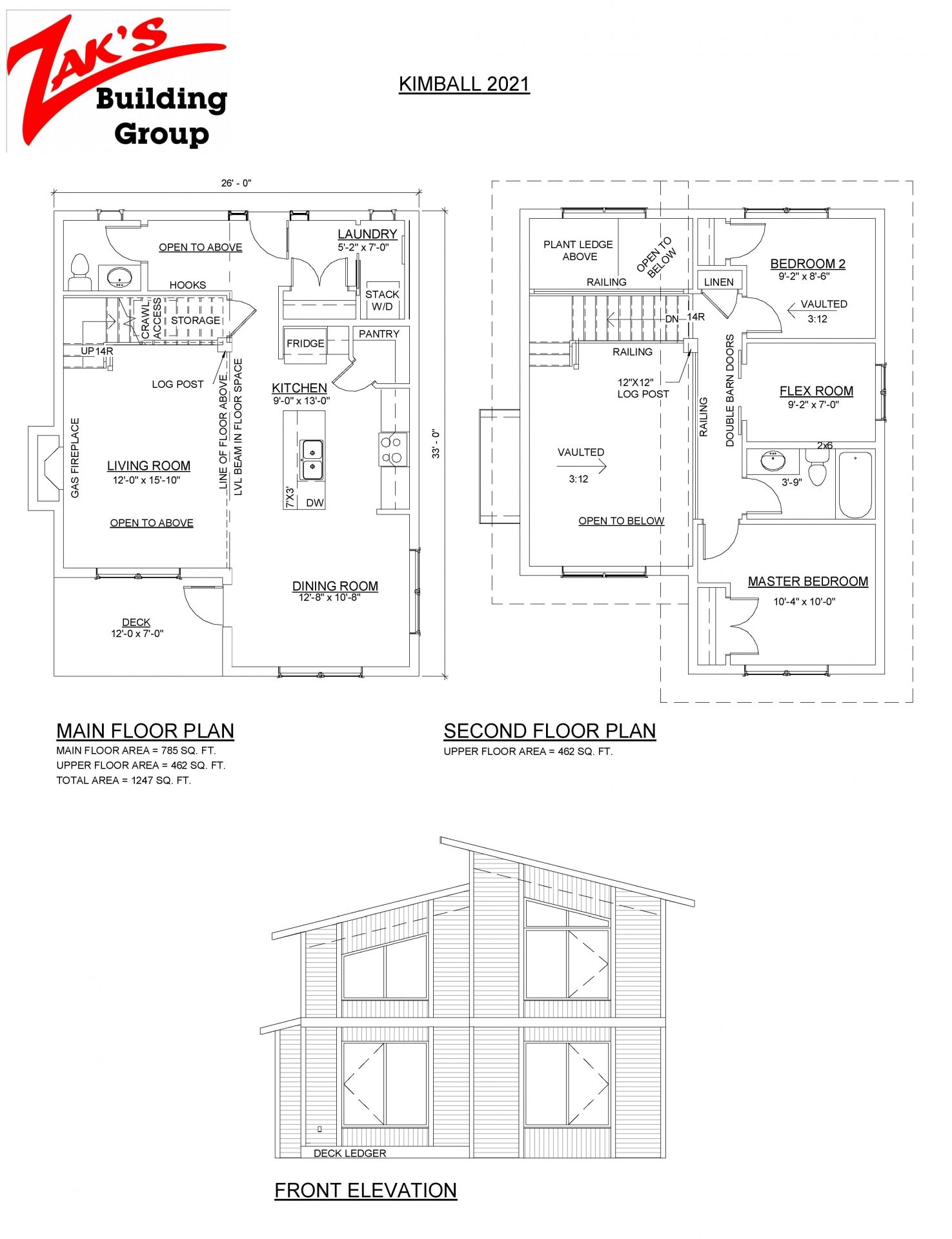
1247 SF
2 Beds
1.5 Baths

ON THE UP AND UP

Rumor has it, the Kimball is one of our staff’s favorite cottages on the yard! Built with a personality to match, this 1247 sq ft RTM has the perfect blend of edgy exteriors and warm interior finishes. Available for purchase today!

This pre-designed home presents 1.5 baths and 2 bedrooms overlooking the living space below.  In the additional flex room, you can create a cozy office or library converted to your private sanctuary with sliding double barn doors.

Careers at Zak’s

DESIGN FEATURES & DETAILS

  • Investor Highlights
    • Strong rental demand in a walkable, amenity-rich location
    • Government incentives and tax advantages
    • RTM construction in Hague, SK reduced costs and ensured quality
    • Efficient land use and compact layouts designed for transport
    • Durable materials and energy-efficient systems for low maintenance
  • Tenant Appeal
    • Walking distance to shops, schools, parks, aquatic and event centers, restaurants, and more
    • Modern finishings, symmetrical layout, and open, low-density feel
    • Private entries, close parking, and adaptable design for future accessibility
  • Design Features
    • Shared walls and air-source heat pumps for thermal efficiency
    • Gravel landscaping for drainage and pest control
    • Open layouts with stacking laundry and minimal common areas
    • Space for ramps, designated parking, and flexible unit conversions

ON-SITE!

FLOOR PLAN

Floor Plan

WARRANTY

Every Zak’s custom-built home is backed by our industry-leading warranty.

REQUEST QUOTE +