Home » Feitsma Multi-purpose Shop

Feitsma Multi-purpose Shop

We don’t just construct buildings. We help you work better.

As members of your community, with roots that run deep in the local ag industry, we are truly invested in helping you succeed. We understand your needs and the challenges you face, and will treat your time and money as if they were our own.

Our comprehensive in-house capabilities mean we can take on projects of any size and complexity—from start to finish—or we give you everything you need to do it yourself.  Whatever your needs, we’ll develop a custom solution that works for you—and your timeline.

Our decades of expertise enables us to find efficiencies, anticipate issues before they become problems, and identify ways to streamline your operations. And our top-quality craftsmanship and streamlined process are matched only by our industry-leading warranty and aftercare services.

Altogether, this means we’ll save you time and money—both while  your project is underway, and long after our work is complete.  

Careers at Zak’s

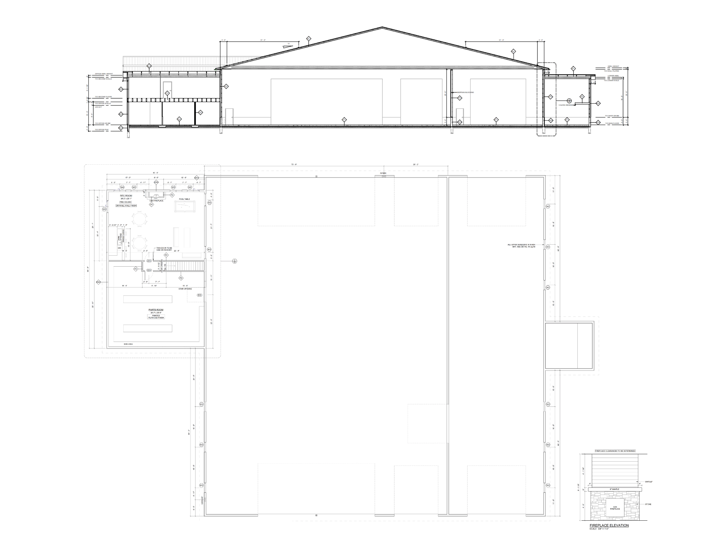
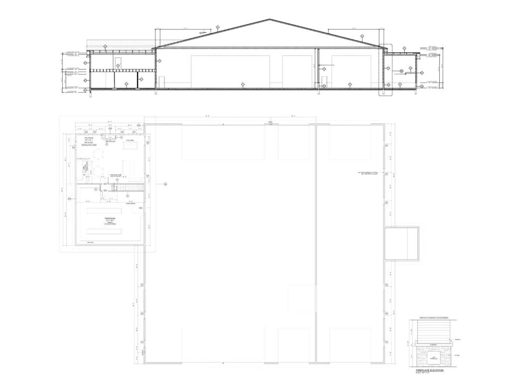
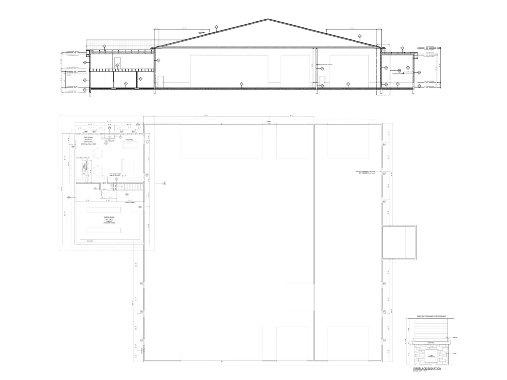
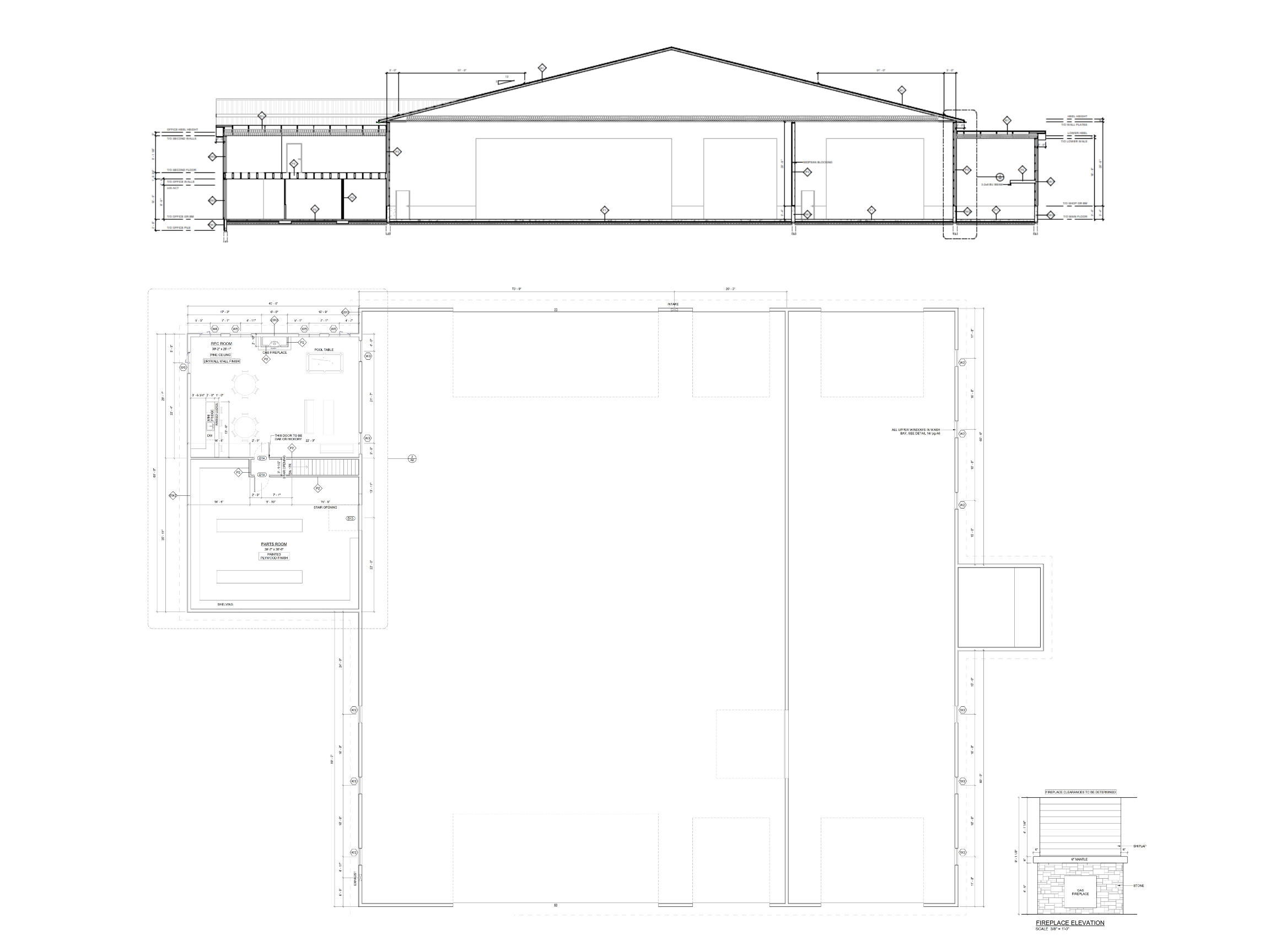
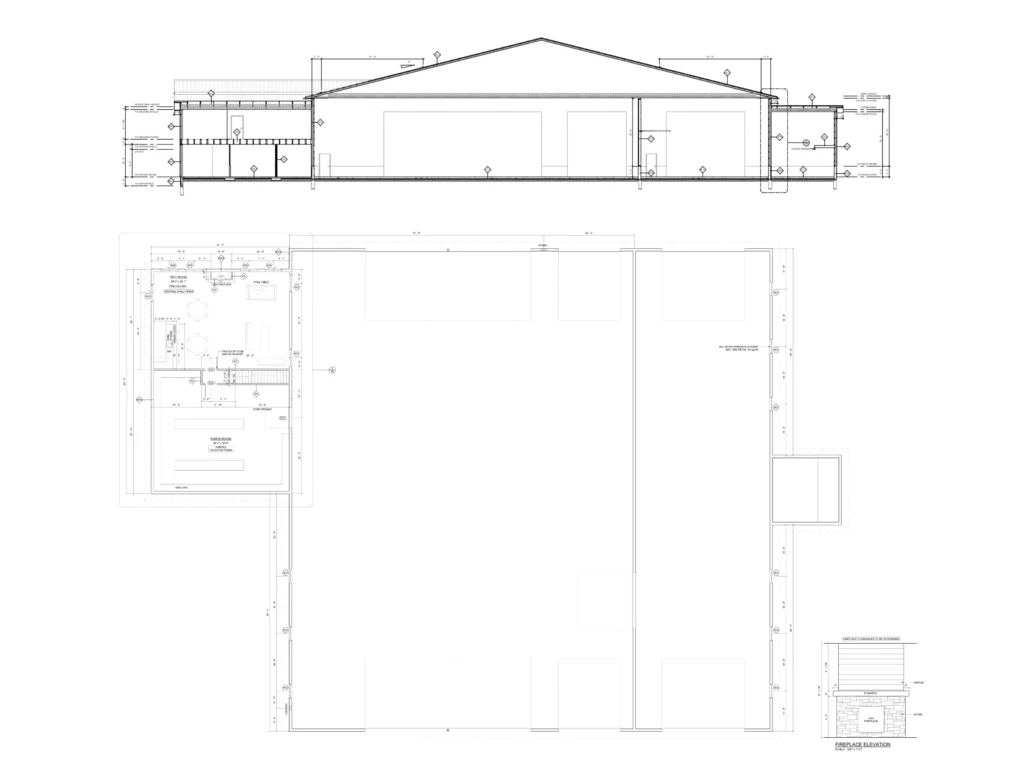
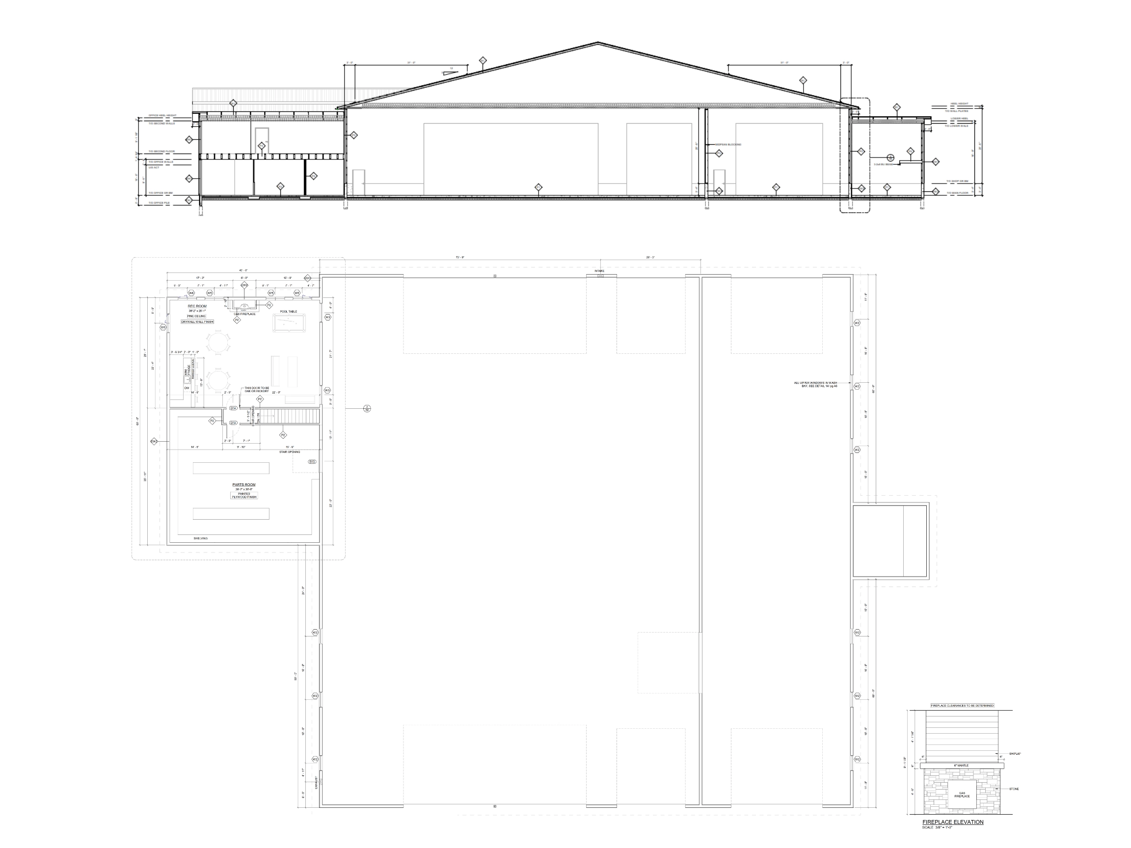
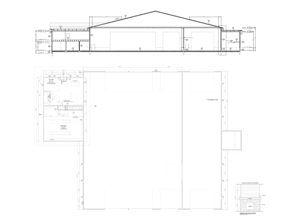
DESIGN FEATURES & DETAILS

  • Investor Highlights
    • Strong rental demand in a walkable, amenity-rich location
    • Government incentives and tax advantages
    • RTM construction in Hague, SK reduced costs and ensured quality
    • Efficient land use and compact layouts designed for transport
    • Durable materials and energy-efficient systems for low maintenance
  • Tenant Appeal
    • Walking distance to shops, schools, parks, aquatic and event centers, restaurants, and more
    • Modern finishings, symmetrical layout, and open, low-density feel
    • Private entries, close parking, and adaptable design for future accessibility
  • Design Features
    • Shared walls and air-source heat pumps for thermal efficiency
    • Gravel landscaping for drainage and pest control
    • Open layouts with stacking laundry and minimal common areas
    • Space for ramps, designated parking, and flexible unit conversions

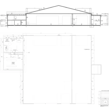
FLOOR PLAN

Floor Plan

WARRANTY

All agricultural building and design projects by Zak’s are backed by our industry-standard warranty. Excellent service technicians are on call and available to meet your immediate repair or maintenance needs.

REQUEST QUOTE +