Home » Orange Car Wash

Orange Car Wash

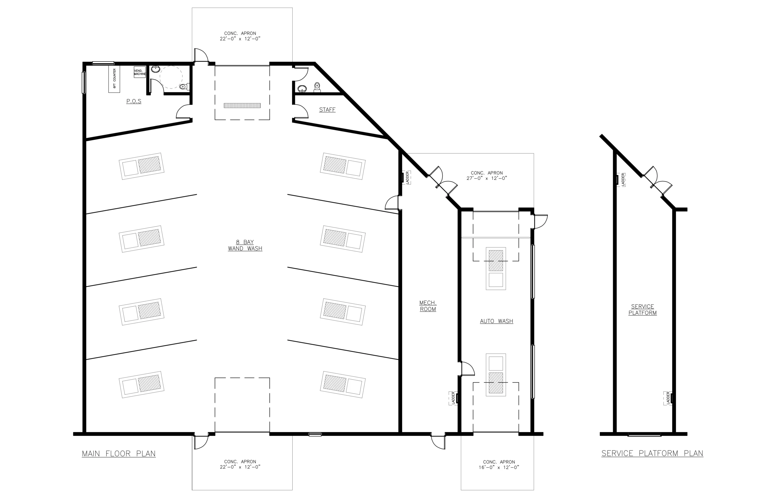
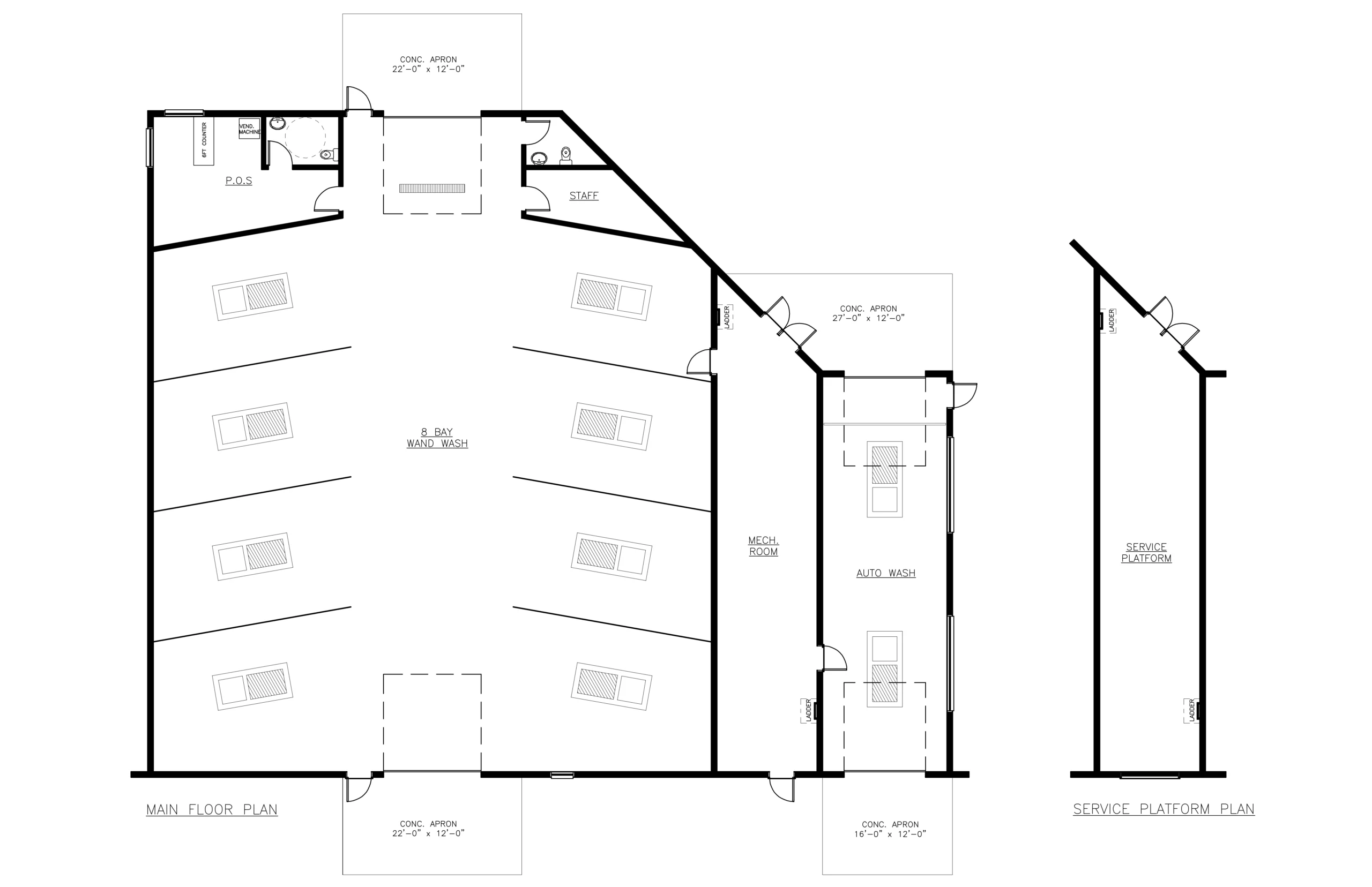
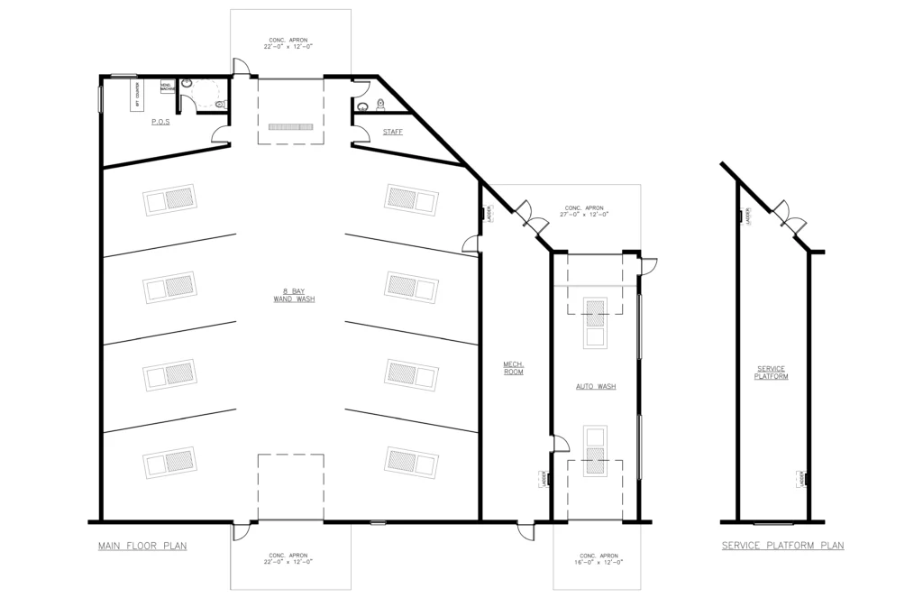
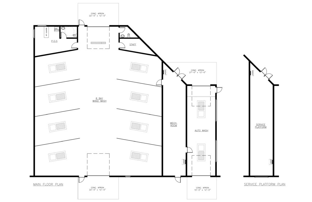
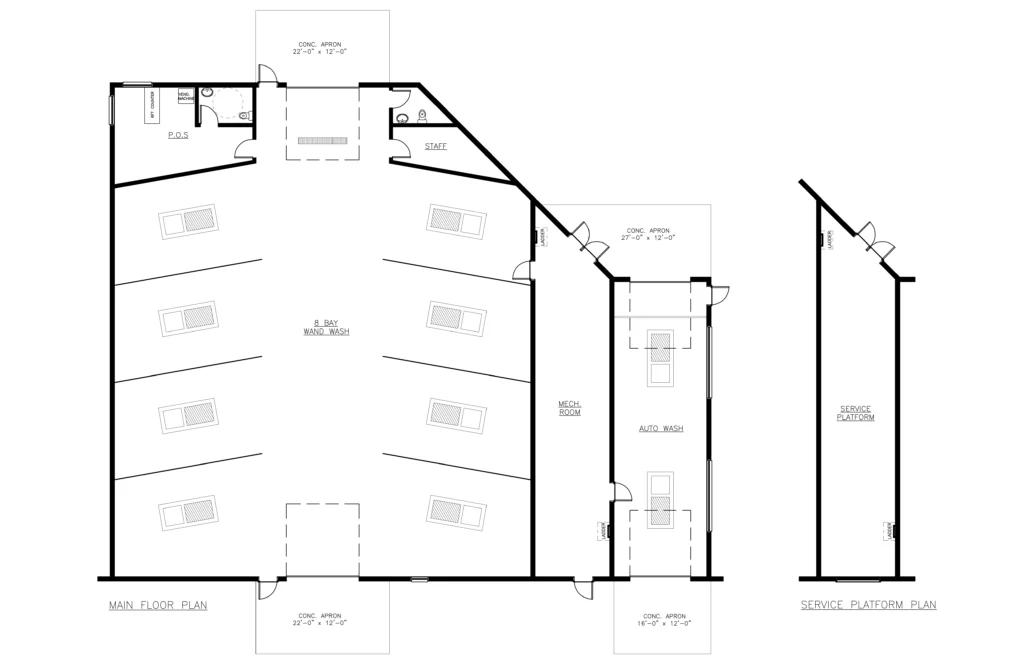
This state-of-the-art, spacious facility is equipped with high-tech car wash equipment and 8 wand wash bays.

Careers at Zak’s

DESIGN FEATURES & DETAILS

REQUEST QUOTE +